

FLATIRONS RETREAT
2 BED - 2 BATH
2,220 SQ FT

MORE INFORMATION
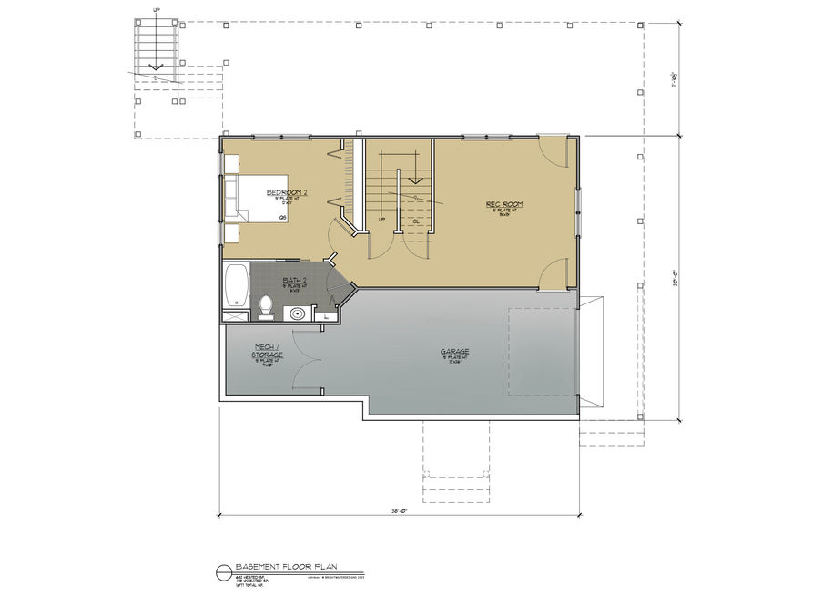
Flatirons Retreat exemplifies modern contemporary mountain home design, seamlessly blending rustic charm with sleek, modern aesthetics. This design is crafted to harmonize with its natural surroundings while offering the utmost in luxury and style. With its striking architectural lines and expansive use of glass, Flatirons Retreat invites the outdoors in, creating a serene and sophisticated living environment. The exterior of Flatirons Retreat is a testament to modern mountain architecture. The design incorporates clean, geometric lines and large windows that frame the stunning natural views. The elevated, wrap-around deck extends the living space outdoors, offering a seamless transition from interior to exterior. To reduce square footage this can be a perfect crawlspace or slab build.
Flatirons Retreat’s interior design is centered around an open-concept living space that exudes both warmth and modern elegance. Vaulted ceilings and expansive windows flood the space with natural light, creating a bright, inviting atmosphere. The design emphasizes clean lines and minimalistic aesthetics.
The living area, anchored by a modern fireplace, serves as a central gathering point. The kitchen features a spacious island, making it perfect for both casual dining and entertaining. The open layout ensures a seamless flow between the kitchen, dining, and living areas, enhancing the home’s social and functional appeal.
The master suite design offers a private sanctuary with large windows that maximize natural light and views.
Flatirons Retreat is a masterpiece of modern contemporary mountain home design. Its thoughtful architectural details, harmonious integration with nature, and luxurious interior and exterior spaces make it an exemplary model of sophisticated mountain living. This design not only provides a stunning visual appeal but also offers functional, sustainable, and elegant living spaces, perfect for those seeking a high-end mountain retreat.





